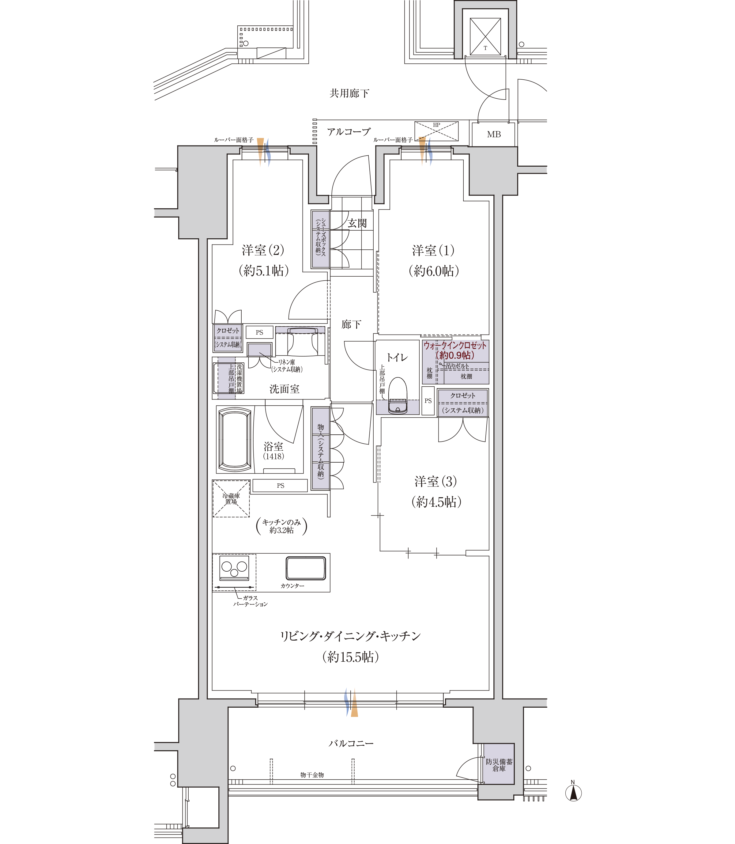
D1TYPE
3LDK
+WIC+防災備蓄倉庫
■住戸専有面積68.87㎡(約20.83坪)※防災備蓄倉庫面積0.78㎡を含む
■バルコニー面積/9.63㎡(約2.91坪) ■アルコーブ面積/3.41㎡(約1.03坪)
通風
採光
収納・防災備蓄倉庫
WIC:ウォークインクロゼット
T:貯湯槽
HP:エコキュートヒートポンプ
※掲載の図面は計画段階のものであり、今後変更となる場合があります。※方位記号は若干誤差があります。
